
MIL-DTL-0048669A (AR)
Conformance Inspection
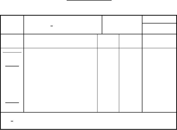
CLASSIFICATION OF CHARACTERISTICS
PARAGRAPH
TITLE
DRAWING NUMBER
8886363
4.4.2.6
Rotor Assembly 1/
SHEET 1 OF 1
NEXT HIGHEST
ASSEMBLY
8886357
CONFORMANCE REQUIREMENT PARAGRAPH REFERENCE
CRITERIA
PARAGRAPH
/ INSPECTION METHOD
CLASSIFICATION
EXAMINATION OR TEST
CRITICAL
None defined
MAJOR
101.
Detonator stake missing (2) min. required
Level IV
3.2
Visual
102.
Detonator inverted
Level IV
3.2
Visual
103.
Detonator above flush
Level IV
3.2
Gage/Probe
104.
Discernible bulge on detonator
Level IV
3.2
Visual
105.
Push off test
Level III
3.2
4.5.4
106.
Check test for deterioration
As Required
3.2
4.5.5
MINOR
201.
Evidence of poor workmanship
Level II
3.13
Visual/4.5.22
NOTES:
1/ All requirements for this assembly may be checked as part of the final escapement assembly less
Setback pin and spring.
13
For Parts Inquires call Parts Hangar, Inc (727) 493-0744
© Copyright 2015 Integrated Publishing, Inc.
A Service Disabled Veteran Owned Small Business