
MIL-DTL-0048669A (AR)
Conformance Inspection
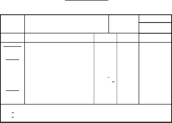
CLASSIFICATION OF CHARACTERISTICS
PARAGRAPH
TITLE
DRAWING NUMBER
12999563
4.4.2.2
Spring, Setback
SHEET 1 OF
1
NEXT HIGHER
ASSEMBLY
8886357
PARAGRAPH
CONFORMANCE REQUIREMENT
REFERENCE
CLASSIFICATION
EXAMINATION OR TEST
CRITERIA
PARAGRAPH
/ INSPECTION METHOD
CRITICAL
None defined
MAJOR
101.
Diameter between tangs
Level IV
3.2
Gage
102.
Tang broken, bent or missing
Level IV
3.2
Visual with
magnification
103.
Push test of simulated setback pin
100 2/
3.2
4.5.2
104.
Verification of heat treat
3 Samples 1/
3.2
4.5.3
MINOR
201.
Length, max
Level II
3.2
Gage
202.
Evidence of poor workmanship
Level II
3.13
Visual/4.5.22
NOTES:
1/ Per heat treat batch.
2/ Accept on zero (0) and reject on one (1).
9
For Parts Inquires call Parts Hangar, Inc (727) 493-0744
© Copyright 2015 Integrated Publishing, Inc.
A Service Disabled Veteran Owned Small Business