
MIL-DTL-0050869F (AR)
Conformance Inspection
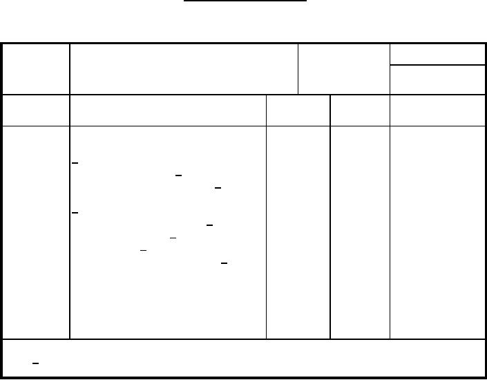
CLASSIFICATION OF CHARACTERISTICS
PARAGRAPH
TITLE
DRAWING NUMBER
8886357
4.4.2.6
Escapement Assembly
SHEET 1 OF
1
NEXT HIGHER
ASSEMBLY
8886355
PARAGRAPH
CONFORMANCE REQUIREMENT
CLASSIFICATION
EXAMINATION OR TEST
REFERENCE
CRITERIA
PARAGRAPH
/ INSPECTION METHOD
CRITICAL
100%
3.2
AAIE/4.5.1
1.
Rotor in armed or partially armed position
1/
2.
Setback spring missing 1/
100%
3.2
AAIE/4.5.1
3.
Setback pin missing or retracted 1/
100%
3.2
AAIE/4.5.1
100%
3.2
AAIE/4.5.1
4.
Detent not engaged in teeth of sector gear
1/
5.
Setback pin not blocking rotor 1/
100%
3.2
AAIE/4.5.1
6.
Detent spring missing 1/
100%
3.2
AAIE/4.5.1
Detent missing 1/
7.
100%
3.2
AAIE/4.5.1
Pinion or verge assembly missing 1/
8.
100%
3.2
AAIE/4.5.1
MAJOR
None defined
MINOR
201.
Evidence of poor workmanship
Level II
3.9
Visual/4.5.22
NOTES:
1/ For definitions see MIL-DTL-48669.
14
For Parts Inquires call Parts Hangar, Inc (727) 493-0744
© Copyright 2015 Integrated Publishing, Inc.
A Service Disabled Veteran Owned Small Business