
MIL-DTL-0050869F (AR)
Conformance Inspection
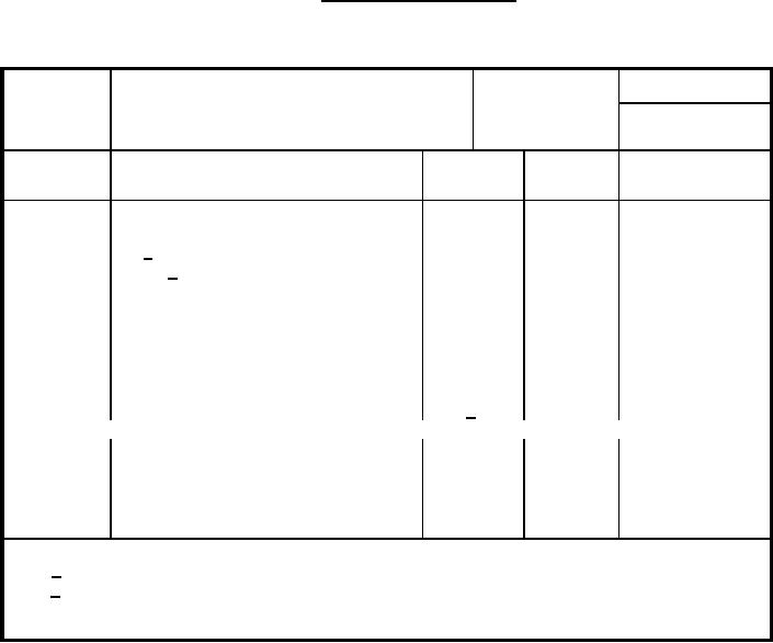
CLASSIFICATION OF CHARACTERISTICS
PARAGRAPH
TITLE
DRAWING NUMBER
8886360
4.4.2.10
Fuze Assembly, Less Spitback
SHEET 1 OF
1
NEXT HIGHER
ASSEMBLY
----------
PARAGRAPH
CONFORMANCE REQUIREMENT
CLASSIFICATION
EXAMINATION OR TEST
REFERENCE
CRITERIA
PARAGRAPH
/ INSPECTION METHOD
CRITICAL
1.
100%
Rotor in armed position
3.2
AAIE/4.5.1
Jolt 2/
2.
12
3.4
4.5.11, 4.5.16
Jumble 2/
3.
96
3.5
4.5.12,4.5.16
Non-functioning
4.
50
3.7
4.5.15
Transportation vibration
5.
50
3.3
4.5.13, 4.5.16
MAJOR
101.
Outside diameter
Level IV
3.2
Gage
102.
Air pressure test of crimped joint
Level III
3.2
4.5.10
103.
Functioning
1/
3.6
4.5.14
MINOR
201.
Marking misleading or unidentifiable
Level II
3.2
Visual
202.
Improper crimp
Level II
3.2
Visual
203.
Evidence of poor workmanship
Level II
3.9
Visual/4.5.22
NOTES:
1/ The requirement is tested at higher assembly. See MIL-DTL-50872 for quantities.
2/ If a detonator initiates during this test, the failure shall be considered a "Major" defect if the fuze is
in the unarmed position.
18
For Parts Inquires call Parts Hangar, Inc (727) 493-0744
© Copyright 2015 Integrated Publishing, Inc.
A Service Disabled Veteran Owned Small Business